WORKS
施工実例・インタビュー
愛車と家族の健康を守る、20代で建てた理想のガレージハウス
Information
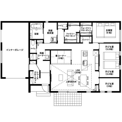
間取り情報
-
階数平屋
-
間取り3LDK
-
坪数40.5坪
-
世帯情報1世帯 ご夫婦+お子様1人
-
世帯情報ご夫婦+お子様1人
-
建設費用3000~3500万円
-
『健康』に気遣う家づくりに共感。多彩な提案で理想の家を導き出してくれた
20代で「家賃を払い続けるよりも、自分の資産になるマイホームを」と決断したオーナー様。
住宅展示場で悠悠ホームに出会い、その「健康」へのこだわりに惹かれたと言います。
「最初は戸惑いもありましたが、丁寧な説明とスピーディーな対応のおかげで、お金のことや家づくりのプロセスが明確になり、ここなら理想が叶うと確信しました」とのこと。
当初は2階建てを考えていましたが、経験豊富な担当者から将来の暮らしを見据えた平屋を提案され、その考えに深く共感。
完成したのは、正面とサイドにシャッターを設けた、愛車とバイクを大切に保管できるビルトインガレージの平屋です。
ガレージから直接室内へ出入りできる動線は、日常の利便性も抜群です。
「開放的な勾配天井のリビングやアイランドキッチン、家事ラクな回遊動線など、希望はすべて形になりました。実際に住んでみて、2つ目のトイレやアーチ型の入り口を設けたパントリーも、アドバイス通りに取り入れて大正解だったと感じています」
また、鼻炎や花粉症があるご夫婦や小さなお子様にとって、綺麗な空気を生み出す『爽re(さらり)』と、家中の蛇口から美味しい水が出る『潤re(うるり)』は、大きな安心材料に。
「趣味の時間を満喫しながら、家族全員が健やかに、安心して暮らせる最高の住まいになりました」
お客様のこだわり・建てた後の住み心地
-
広い敷地を贅沢に活かした、階段のないフラットな暮らし
広い土地が見つかったことで実現した、憧れの平屋。
「階段の上り下りがない生活は、想像以上に体が楽ですね」とオーナー様。
フラットな動線がもたらすゆとりと、平屋ならではの開放感を日々実感されており、将来まで安心して暮らせる住まいになりました。
-
オーナー様のこだわりと、プロの提案が響き合うガレージハウス
「大好きなバイクを最高の状態で保管したい」というオーナー様の熱い想いと、設計担当からの機能的な提案をバランスよく融合。
ビルトインガレージをはじめ、細部までこだわりを詰め込みました。
二人三脚で作り上げたからこその、満足度の高い仕上がりに喜びもひとしおです。
-
勾配天井と無垢の質感が織りなす、開放的なヴィンテージ空間
勾配天井の高さを活かしたリビングは、窓から庭の緑や青空を望める開放感あふれる場所。
白・黒・木目の配色で統一された室内には、深みのあるウォールナットの無垢床を採用しました。
「明るい光が差し込むなかで、お気に入りのヴィンテージ家具がしっくりと馴染む。
どこにいても木の温もりと爽やかさを感じられる、最高の家族団らんの場になりました」とお話しいただきました。
-
遊び場にも、ベンチにも。ボロン畳が彩る23帖の快適な大空間
LDKの一角に設けたのは、伝統的な風合いと高い耐久性を兼ね備えたボロン畳のコーナー。
お子様の遊び場やお昼寝、来客時のベンチ代わりなど、暮らしのシーンに合わせてマルチに活躍しています。
「LDKを合わせると約23帖もの大空間ですが、エアコン1台で一年中快適。
驚いたのは断熱性の高さで、この冬は一度も暖房を使わずに過ごせたほどです」と、デザインだけでなく、住まいの確かな性能にも感動されていました。
-
行き止まりのないスムーズな動線と、素足で歩きたくなる凹凸の無垢床
「突き当たりや無駄な動きのない間取りにしたい」というオーナー様のこだわりから、畳コーナーの裏側にもLDKへ繋がる動線を確保。
家中をスムーズに移動できる回遊性が、日々の暮らしにゆとりを生んでいます。
また、床材には表面に波のような凹凸加工を施した『チェリーダブルクラフト』を採用。
「とにかく素足での肌触りが心地いいんです。無駄のない動線とこの床の質感のおかげで、毎日が本当にストレスフリーです」と、歩くたびに感じる住まいの質に満足されています。
-
「洗う・干す・しまう」が最短距離で完結する時短動線
ランドリールームを兼ねた脱衣室から、ウォークインクローゼット、そして寝室へと繋がる機能的な動線。
「洗濯物が乾いたら、ハンガーのままクローゼットへ移動させるだけで収納が終わります。
-
ゲストと動線を分けた大容量シューズクローゼット
玄関には、ロングブーツや傘なども自在に収納できる、可動棚付きの大容量シューズクローゼットを設置。
仕切り壁が家族とゲストの動線を分ける役割を果たしています。
「靴や荷物がゲストの目に触れないようスマートに隠せるので、玄関はいつもスッキリ。
-
室内外へ繋がる2Way動線のビルトインガレージ
室内と屋外への2Way動線を確保したビルトインガレージ。雨の日でも濡れずに快適に行き来でき、大切な愛車やバイクを風雨や埃から守ってくれます。
天候に左右されず、ガレージからそのまま室内に出入りできるのがとても便利です。
こちらの実例もご覧ください。
追求した
2階建てプラン
話題の
平屋プラン
良質プラン50選から
無料で会員限定プランも見たい!
良質プラン50選から
お気に入りプランを探す無料で会員限定プランも見たい!
プレミアム会員登録をする


