MODEL HOUSE
展示場・モデルハウス
- 小倉北区許斐町1
- ボタニカル
- バルコニー
【小倉北展示場】植物や自然を感じられるボタニカルハウス
BOHO(ボーホー)
福岡県北九州市小倉北区許斐町1番地RKB住宅展小倉北 内
営業時間: 10:00~18:00 定休日:火曜・水曜
緑に囲まれリラックスして暮らせる家
ボタニカルBOTANICAL(植物の)ハウスHOUSE(家)として緑をふんだんに取り入れることをコンセプトにしたモデルハウスです。
ナチュラルモダンなテイストにボタニカル(植物的な)要素をプラス。
無機質な要素に木の素材を合わせた外観。
モダンなアイテムも入れつつ程よい「抜け感」も意識したミックスインテリア。
どこにいても植物・自然を感じられ、スローな時間が流れる暮らしをイメージし、肩の力を抜いて清潔感のある心地良い空間作りを目指しました。
PHOTO
GALLERY
フォトギャラリー
PLAN
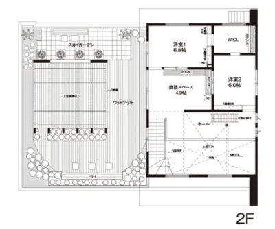
展示場間取り
- 間取り情報
- 1階床面積135.31㎡(40.93坪)
- 2階床面積63.83㎡(19.30坪)
- 延床面積199.14㎡(60.23坪)
-
来場は予約したほうが良い?
-
はい、平日も土日もお待たせせず、お客様のご予定に合わせてゆっくりとご覧いただけますのでぜひご予約ください。
混雑時でも優先的にご案内いたしますのでお忙しい方に便利です。
-
-
託児所はある?
-
スタッフがお子様をお預かりいたしますので、安心してゆっくりとご見学いただけます。
-
-
来場予約した後はどうすれば良い?
-
ご予約いただいた展示場よりお電話させていただきます。当日、お気をつけてお越しください。
(ご予約いただいた内容は、登録いただきましたアドレス宛にお送りします。)
-
-
どんなことが相談できるの?
-
間取りの相談のほか、資金計画や土地探しの相談もお気軽にご相談ください。
-
展示場へのご来場の際は事前の「来場予約」がオススメです。
平日も土日もお待たせせず
お客様のご予定に合わせて
ゆっくりとご覧いただけます。

混雑時でも
優先的にご案内いたしますので
お忙しい方に便利です。

お子様をお預かりいたしますので
安心してゆっくりと
ご見学できます。

間取りの相談のほか、
資金計画や土地探しの相談も
合わせて承っております。

ACCESS
アクセス
福岡県北九州市小倉北区許斐町1番地RKB住宅展小倉北 内
-
お車でお越しの方北九州都市高速「長野ランプ」より約15分、東九州自動車道「苅田北九州空港IC」より約5分
-
交通機関をご利用になる方西鉄バス北九州「北九州臨空産業団地」より徒歩約3分
STAFF
この展示場で働くスタッフ
-
#営業
柳井 翼
Yanai Tsubasa
-
#営業
山本 達也
Yamamoto Tatsuya
-
#営業
大淵 健司
Ofuchi Kenji
-
#営業
網永 佳代
Aminaga Kayo
-
#営業
梅﨑 奏芽
Umezaki Kaname
-
#営業
東 元基
Higashi Motoki
-
#営業
吉田 卓巳
Yoshida Takumi
-
#営業
横本 浩志
Yokomoto Hiroshi
わからないことがいっぱいの
はじめての家づくり。
家づくりに関する不安や疑問を、
なんでもご相談ください。
スタッフがお客様の理想の家づくりを
お手伝いします。
RESERVATION
来場予約フォーム
- 必須項目を入力
- 送信完了
【WEB来場予約キャンペーン(QUOカード最大15,000円)】
①こちらの事前予約ページに設置された「事前アンケート」に入力回答された上、ご予約の展示場にご来場いただいた方に1,000円分のQUOカードをプレゼント
②お住まいのご相談時に「土地探しアプリ」へご登録いただき、ご相談後に簡単なアンケートにご回答いただいた方へ、4,000円分のQUOカードPayをプレゼント。
③期間中に住宅ローンの事前審査をされた方に10,000円分のQUOカードをプレゼント
【条件】
・期間中にお家づくりを真剣に検討しているご家族2名様以上でご来場された方
・期間中に初めて悠悠ホームの〈 展示場・モデルハウス / 織の里分譲地・モデルハウス / 体感ショールーム 〉いずれかへご来場され、アンケートへご記入いただいた方
【キャンペーン期間】
2025年12月1日(月)~12月31日(水)
【注意事項】
・過去に悠悠ホームへのご来場経験がある方、オンライン相談のご経験がある方、すでにご商談中のお客様は対象外となります。
・ご家族様1組につき1度限り/未成年の方のみでのご来場は対象外
・〈注文住宅完成見学会 / EQUAL / FAV STYLE / 分譲地(織の里分譲地を除く)/ 分譲住宅 / リフォーム〉へのご来場は対象外
・展示場、イベント会場等でのアンケート記入が必須となります。
・②はアンケートにご回答後、5~10日ほどでメールにてQUOカードPayをお送りいたします。
・②の「土地探しアプリ登録」について、建築地が決定しているお客様のアプリ登録は不要です。
・ご本人様確認のため免許証等の身分証明書の提示をお願いする場合があります。
・弊社HPからのご予約の前に、他サイト(SUUMOなど)からのご予約を頂いた方は対象外となります。
【200万円以上お得!/住宅モニターキャンペーン】
【プレゼント内容】
毎月最大2組様限定!
お家の完成後、入居前の3ヶ月間をモデルハウスとしてお貸しください。これにより建築費用から200万円のお値引きをいたします!
さらに、20万円相当のエアコン(本体+工事費込み)もプレゼント!
メリット:
「住宅モニターキャンペーン」は、家を建てる方にも、家づくり検討中の方にも、そして環境にもやさしい、新しいかたちのサステナブルな家づくりです。
・家を建てる方: 3カ月間だけ、おうちをモデルハウスとしてお貸しいただくことで、お得に家づくりができる!
・検討中の方:展示場よりもリアルなサイズ感や間取りを見ることができる貴重な機会になる!
・環境:期間限定で使用される大型展示場の建設を減らすことで、資源のムダを減らし、家づくり全体をやさしく、持続可能なものに!
【キャンペーン期間】
2025年5月1日(木)~
※当選者は毎月最大2組様限定となります。
※キャンペーンは予告なく終了することがございます。ご了承ください。
【キャンペーン申込方法】
①来場予約ページにて、ご希望の展示場を選択のうえ、ご来場予約をお願いいたします。
②展示場へご来場後、所定のお申し込みシートにご記入いただくことで、キャンペーンへのお申し込みが完了となります。
【条件】
・悠悠ホームで新築住宅を建てる方(平屋・二階建て以上・二世帯住宅・店舗併用住宅も対象)・キャンペーン申込み時点で悠悠ホームと未契約の方。
・弊社実施中の他キャンペーンとの併用不可(来場予約特典のQUOカード最大1.5万円は併用可能)
・悠悠ホームの社員及び、関連企業の方はお申込みいただけません。
・詳細については展示場にてスタッフにお問い合わせください
メールアドレスを登録された方には、自動で確認メールを送信しております。メールアドレスの誤入力、携帯電話のドメイン指定受信の設定などにより確認メールを受信出来ない場合がございます。迷惑メールなどに入っている場合もございますので、再度受信設定をご確認ください。確認メールが届かない場合は、当社からの返信を受信出来ない可能性がございますので、お手数ですが、メール以外の連絡方法を追記の上、再度お問い合わせいただきますようお願い致します。


