ESTATE
土地・分譲住宅情報
熊本エリア
健軍4丁目モデルハウス ビルトインガレージと家事ラク動線の家
-
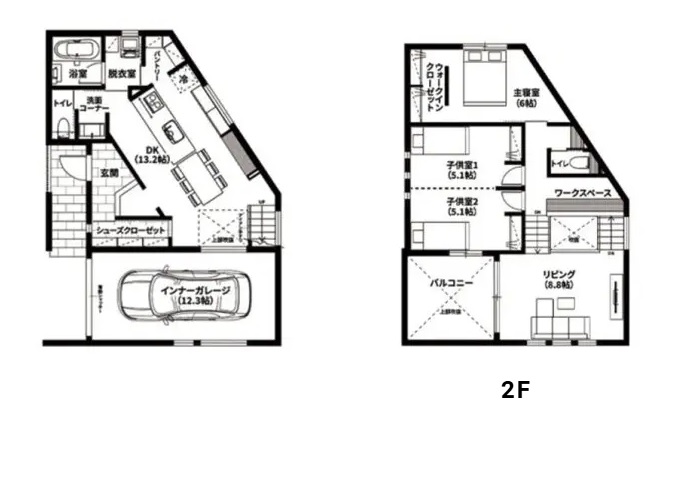
間取り
:
3LDK
-
建物面積
:
120.07㎡(36.32坪)
-
建築確認番号
:
-
学校区
:
健軍小学校・湖東中学校
-
設備
:
上水道、下水道、オール電化
-
建蔽率
:
容積率:60%/150%
-
用途地域
:
第1種中高層住居専用地域
-
地目
:
宅地
-
取引形態
:
売主
物件価格
4,780万円
住宅ローン
月々134,376円
※全額借入、35年返済、変動金利0.975%の場合
-
熊本市電 健軍校前
(約400m/徒歩5分)
-
熊本市東区役所東部まちづくりセンター
(約1,340m/徒歩17分)
-
熊本市民病院
(約1,800m/徒歩23分)
-
熊本健軍郵便局
(約343m/徒歩4分)
-
熊本市立健軍小学校
(約812m/徒歩10分)
-
熊本市立湖東中学校
(約266m/徒歩4分)
-
セブンイレブン熊本健軍4丁目店
(約650m/徒歩8分)
-
健軍神社
(約800m/徒歩10分)
熊本市電健軍校前駅まで徒歩5分の好立地♪通勤・通学に大変便利です
【健軍モデルハウス販売開始】
家具・照明・エアコン・エクステリア外構込み!
インナーガレージや開放的な吹き抜けリビングを叶えた家♪
■物件のおすすめポイント
・明るい光が差し込む広々とした2階リビング
・リビングに併設された広々としたバルコニー
・電動シャッター付きのビルトインガレージ
・階段を上がるとワークスペースがあります♪
・子供室は10.2帖あり将来的に間仕切りできる2ドアワンルームになっています♪
■周辺環境
熊本市電健軍校前駅まで徒歩5分
通勤・通学に大変便利なエリアです☆
小中学校も徒歩圏内にあるため、お子様の通学も安心。
・健軍小学校まで徒歩9分(約700m)
・湖東中学校まで徒歩3分(約140m)
PHOTO
GALLERY
フォトギャラリー
PLAN
間取り
- 1■キッチン
- キッチンはタカラスタンダードを採用。キッチンパネルはホーローなので油汚れに強く、お掃除が楽に!浄水器付内蔵ハンドシャワーは水の無駄使いをカットしてくれます。コンロは2口IHヒーター+ラジエントヒーターの3口。IHなので日々の吹きこぼれお掃除が簡単です♪
- 2■洗面台
- 人気のスマートサニタリー♪洗面カウンターに棚板・ミラーのスタイリッシュなオープンタイプの洗面化粧台です♪
- 3■浴室
- タカラのホーロークリーン浴室パネル付きお風呂は毎日シャワーで流すだけで湯垢もサッと一拭き!傷つきにくく、汚れにくい!浴槽はベンチタイプなのでお湯の量を節約でき、半身浴にも最適です♪
- 4■トイレ
- 便器のフチがないので汚れが隠れる場所がなく、お手入れカンタン。8L便器に比べて41%の節水を実現、超節水で水道料金もお得に。タイマー節電とおまかせ節電機能で電気代も安心です♪
- 5■食器洗い乾燥機
- 1ビルトインガレージ
-
愛車を安全に保管できるインナーガレージは、電動シャッターで開閉が簡単。
雨の日も濡れずに車から家へ、便利で快適です。 - 2ダイニング
- 13.2帖のダイニングと水廻りスペースがあります♪ダイニング横には机があるので家事コーナーやお子様のスタディースペースとして活用できます♪
- 3ダイニング
- ダイニング横には机があるので家事コーナーやお子様のスタディースペースとして活用できます♪
- 4パントリー
- キッチン裏にはパントリーがあり、食材や日用品の整理もスムーズです。
- 5スキップフロア
- ダイニングの階段を上がるとリビングに繋がっています♪
- 1開放的なリビング
- 天井高約3.6m越の開放的なリビング♪南面にはスリット窓が3ヵ所あり明るい室内です♪
- 2広々バルコニー
- リビングに併設された広々としたバルコニーは、家族でアウトドアの時間を楽しむのに最適です。ここではバーベキューを楽しんだり、星空を眺めながらくつろいだり、ガーデニングをしたりと、さまざまな活動が可能です。
- 3ワークスペース
- 2階廊下にはカウンタースペース♪ワークスペースやお子様のスタディースペースに活用できます♪
- 4主寝室
- 広々とした寝室とウォークインクローゼット。主寝室は広々としており、日々の疲れを癒すのにぴったりの空間です。
- 5子供部屋
- 10.2帖の洋室♪パーテーションを入れることで5.1帖ずつの2部屋としても活用できます♪各部屋に収納があります。自分のスペースなのでお好みのレイアウトや収納を楽しめます♪
| 所在地 | 熊本県熊本市東区健軍4丁目 | ||
|---|---|---|---|
| 価格 | .4,780万円 | ||
| 土地面積 | .133.34㎡(40.33坪) | ||
| 建物面積 | .120.07㎡(36.32坪) | ||
| 完成時期 | - | ||
| 間取り | 3LDK | ||
| 建ぺい率 | 60% | 容積率 | 150% |
| 接道 | 西側4m幅、南側4m幅 | ||
| 地目 | 宅地 | ||
| 都市計画 | 市街化区域 | ||
| 用途地域 | 第1種中高層住居専用地域 | ||
| 交通 | 熊本市電「健軍校前駅」約5分 | ||
| 学区・教育 | 健軍小学校(700m) / 湖東中学校(140m) | ||
| 売主・施工会社 |
悠悠ホーム株式会社:福岡県大野城市筒井4-19-10 TEL:0570-00-6995 宅地取引業許可/国土交通大臣(3)第008121号 建設業許可/国土交通大臣 許可(特-3)第23967号 |
||
| お問い合わせ | 096-386-5520(熊本展示場) | ||
| 情報更新日 | 2025年1月14日 | ||
| 次回更新予定日 | 2025年1月28日 | ||
ACCESS
アクセス
熊本県熊本市東区健軍4丁目
物件詳細情報(全1区画)
健軍4丁目モデルハウス ビルトインガレージと家事ラク動線の家 .
熊本県熊本市東区健軍4丁目
健軍4丁目モデルハウス ビルトインガレージと家事ラク動線の家 .
熊本県熊本市東区健軍4丁目
間取図
画像クリックで拡大表示
画像タップで拡大表示
外観・設備写真
画像クリックで拡大表示
画像タップで拡大表示
物件のご来場・お問い合わせ
健軍4丁目モデルハウス ビルトインガレージと家事ラク動線の家
物件へのご来場の際は事前の「来場予約」がオススメです。
平日も土日もお待たせせず
お客様のご予定に合わせて
ゆっくりとご覧いただけます。

混雑時でも
優先的にご案内いたしますので
お忙しい方に便利です。

お子様をお預かりいたしますので
安心してゆっくりと
ご見学できます。

間取りの相談のほか、
資金計画や土地探しの相談も
合わせて承っております。

わからないことがいっぱいの
はじめての家づくり。
家づくりに関する不安や疑問を、
なんでもご相談ください。
スタッフがお客様の理想の家づくりを
お手伝いします。